Fornitura del gap litro:
- ceppo quadrato 40 x 143 mm
- Modello Slot (fessure di ventilazione nelle pareti)
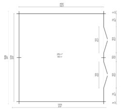
- Dimensioni base: larghezza 5080 (5260) mm, lunghezza 4900 (5080) mm
- Altezza spazzola 3260 mm
- Altezza parete laterale 1720 mm
- Lunghezza colmo del tetto 5760 mm
- doppie ante 2 x 1518 x 1650 mm (Ante assemblate)
- gronda e tavole terminali 40 x 143 mm
- facile da montare
- Tetto in pannello profilato di 18 mm di spessore
PACCHETTO DI CONSEGNA BASE NON INCLUSO:
Pacchetto pavimento (incl. colli del pavimento impregnati a pressione 45 x 70 mm, assi del pavimento 32 x 125 mm, accessori di fissaggio (viti e chiodi)
